Collège et Elémentaire Ermitage
Bardage bois | MOB | Métal laqué | zinc | laine de bois
Nous avons conçu l’ensemble du projet de restructuration du site Eglé de l’Ermitage dans le respect de son environnement urbain et végétal. Le projet est marqué par la création d’un édifice à la fois simple, efficace et contemporain. Le projet allie rigueur et fonctionnalité dans un cadre serein, paysagé, protégé, propice aux activités qui doivent s’y dérouler.
A cette fin, nous retenons les dispositions suivantes:
Une géométrie réglée, qui se déploie en courbes au sein des frondaisons arborées, afin d’héberger sa fonction première : accueillir des espaces d’enseignement pour des élèves de 6 à 15 ans.
Une écriture architecturale contemporaine assumée et intégrée par les courbes qui scandent les façades, ainsi que par les coursives protectrices mettant en scène les circulations à l’intérieur du bâtiment et prolongeant les classes sur l’extérieur.
Un revêtement de façades en bois en écho au patrimoine boisé du site.
| Lieu : Maisons-Laffitte | moa : Laffitte Education pour l’Ermitage International School | moe: MeKA architectes mandataires | CIEL Architectes | P2I ingénierie | Batiserf | P.Loison | surface : 2 463 m² | budget : 5,2 M€ |
Plan de RDC
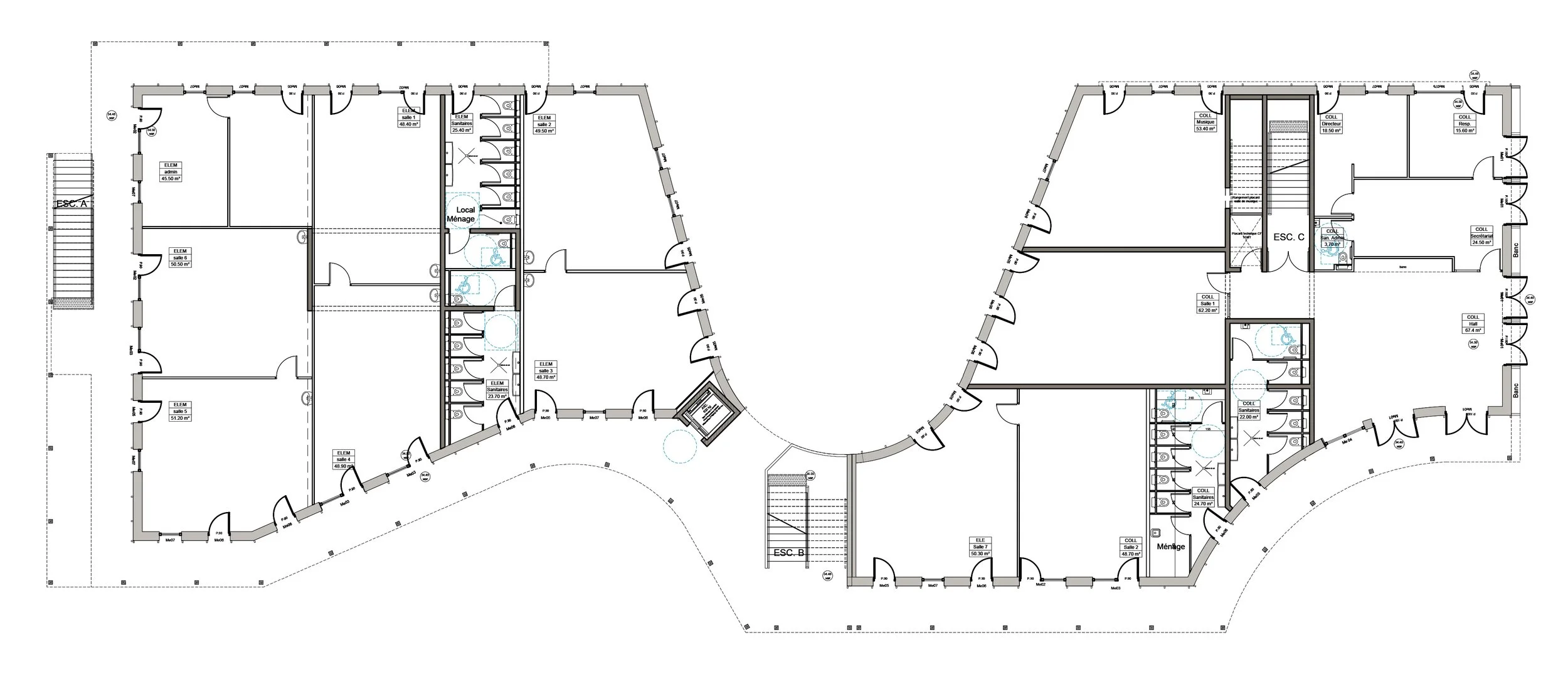
Plan de R+1
Plan R+2
